Magnífica oficina al lado de Casa Seat










Novus Real Estate presente esta oficina reformada situada en una inmejorable ubicación, al lado de Casa Seat en Passeig de Gràcia con Av. Diagonal.
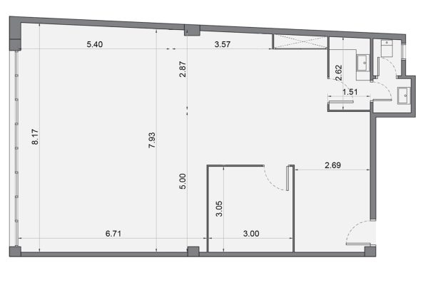
Cuenta con una superficie de 105 m², completamente diáfana y muy luminosa, se distribuye en una sala de reuniones acristalada y una amplia estancia con diferentes mesas de trabajo. Además, dispone de un recibidor, cocina equipada y baño.
El inmueble, se encuentra en un edificio exclusivo de oficinas, con servicio de portero y dos ascensores. Además, la finca cuenta con parking accesible desde los ascensores. Existe la opción de comprar, junto con la oficina, una plaza de aparcamiento de unos 8,5 m², por 15.000€.
Este inmejorable despacho ha estado alquilado durante varios años. Es una magnífica oportunidad para clientes patrimonialistas. También, como alquiler, es una grandísima oportunidad por su inmejorable ubicación y la disponibilidad de parking en el edificio.
¡No dejes de visitarla!
- Precio: 320.000€
- Superficie: 105 m²
- Zona: Passeig de Gràcia - Av. Diagonal
- Planta: 3º
- Distribución: Diáfana
- Exterior: Sí
- Cocina: Sí
- Baños: 1
- AACC: Sí
- Parking: Sí
- Portero: Sí